R O B I N _ B E R T R A M _a r c h i t e c t s

A _ C o u r t y a r d _ H o u s e

 

 

A Courtyard House

 

 
 

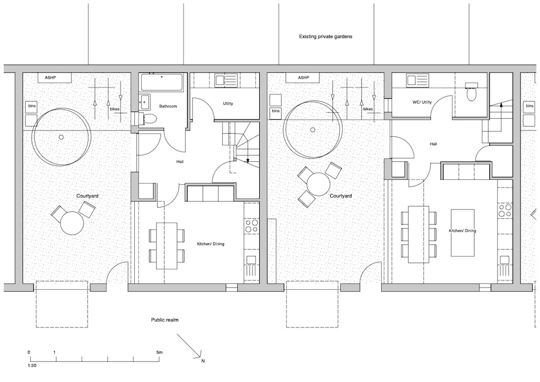
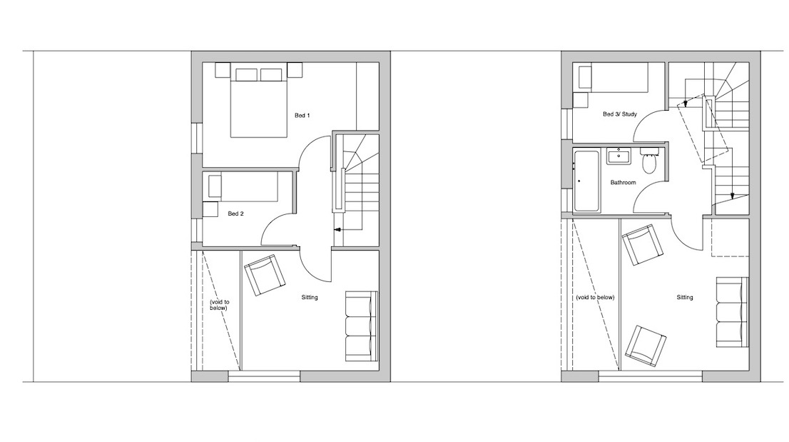
A new house-type, designed as part of an ideas competition exploring how to replace redundant blocks of garages in a city centre.

The design balanced the the sensitivities typical of back-land development – fears of security, privacy and the overshadowing and loss of amenity of the existing residents – with creating the quality of space and light for the new homes, as well as opportunities to build the community.

As a reference to the site’s previous use, the design proposed to retain the garage doors and to re-purpose them as screens into the private courtyard, providing flexibility for security and privacy. A mixture of house-types allow for different settings and to meet varying housing need requirements.

 

 
 
 

 

back to Housing

 

 

back to Home page