R O B I N _ B E R T R A M _a r c h i t e c t s

S i d n e y _ F a r m _ B a r n s

 

 

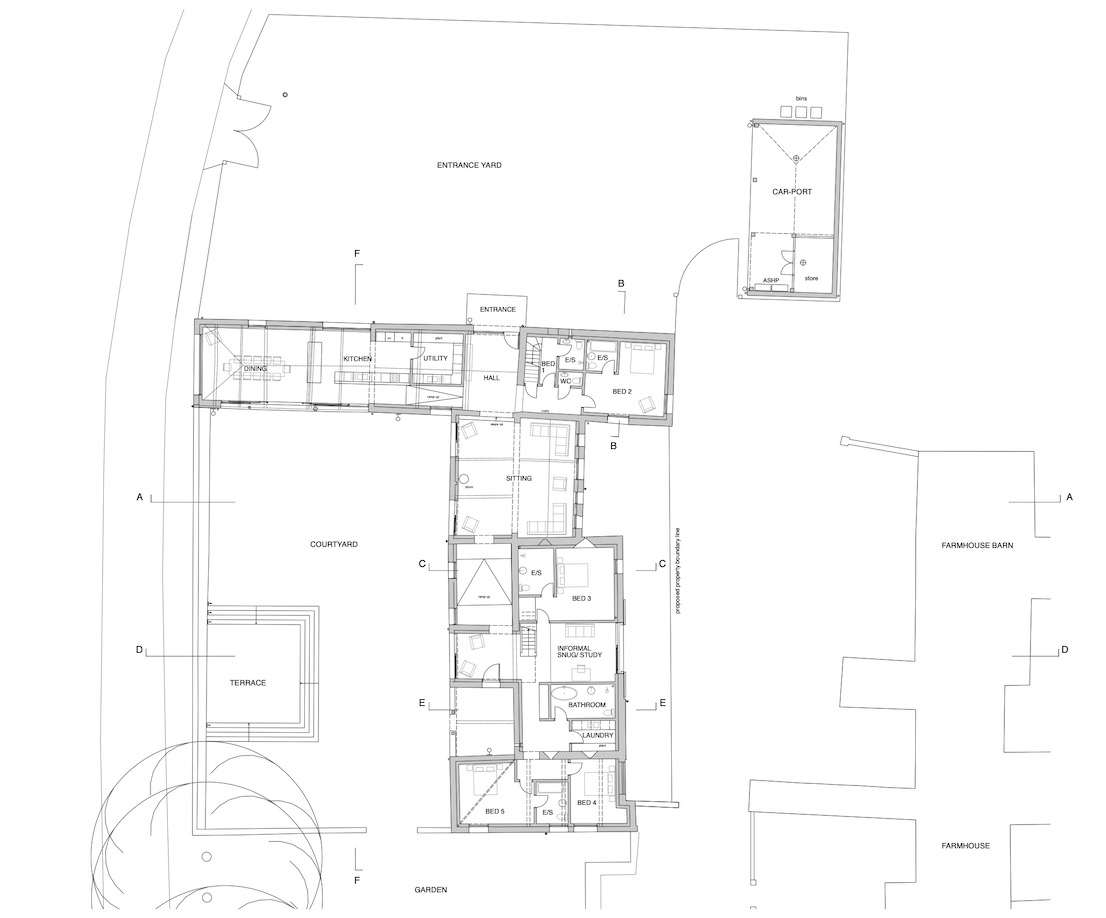
Sidney Farm Barns, Norfolk

 

 
 

Listed Building Consent and Planning Permission obtained for the conversion and adaptation of the redundant agricultural barns, into a large family home in the countryside.

The design was developed from the strong sense of protective enclosure afforded by the sunken courtyard, providing a sheltered focus around which to orientate the house, within the expansive North Norfolk landscape.

Working within the volumes and openings offered by the existing buildings, the modifications to the original fabric are limited, creating unique internal spaces and helping to preserve the character of these beautiful historic structures.

 

 
 
 

 

back to Houses

 

 

back to Home page