R O B I N _ B E R T R A M _a r c h i t e c t s

U p p e r _ F a r m _ B a r n s

 

 

Upper Farm Barns, Norfolk

 

 
 

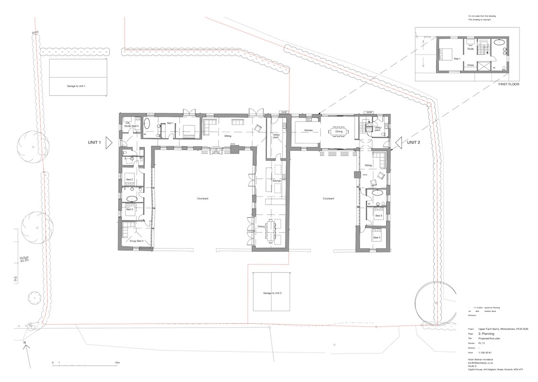
Planning Permission has been obtained for the conversion and extension of redundant agricultural barns for two separate dwellings.

Comprising of three wings, the barns naturally created two separate south-facing courtyards, so this became the starting point for the design, with each dwelling focused around a courtyard.

The proposed materials and details made reference to the past use of the surrounding fields which were used as an airfield during the Second World War, as a gentle nod to the historical importance and identify of Wimbotsham.

 
 
 
 
 

 
     
 

 

 
 

 

back to Housing

 

 

back to Home page